1951 Coffee Stand

Designing a mobile café as both a service and a platform for refugee empowerment.

Role: Project manager and sole designer, In collaboration with Montaag Design.
Client: 1951 Coffee Company, a non-profit.


1951 Coffee, a nonprofit specialty coffee organization, supports refugees and asylees in the San Francisco Bay Area through job training, employment, and public education. After the success of their first café, the organization sought to expand into Downtown Berkeley’s new plaza with a stand that could adapt to the site’s evolving vision while maintaining their mission-driven identity.

Partnering with Montaag, the design process began in close coordination with the Downtown Berkeley Association. The concept evolved alongside the plaza’s development, shifting from a permanent 100 sq ft structure to a compact, mobile 50 sq ft stand. Each iteration balanced spatial efficiency, mobility, and brand presence, ensuring the design would integrate seamlessly into the public space while remaining functional for training and employment programs.

The resulting stand is more than a café—it is a community platform. It provides a highly visible point of connection between 1951 Coffee and the public, offering a space not only to serve coffee but also to train employees, share refugee stories, and build awareness. Every cup becomes an opportunity for connection and empowerment.

BART_Plaza_Activation_Plan_Map v2.jpg

Downtown Berkeley plaza proposed site plan. 1951 Coffee stand to go facing store 2176.

The design also integrated symbolism at the architectural scale. The house—an enduring emblem of welcome and shelter—inspired the form and material palette, drawing from the identity of 1951’s original café. Core colors reinforced the mission: Red (Coffee), Green (United Nations), Yellow (Community), and Blue (Refugees).

Within a year, the stand evolved in response to Berkeley’s city requirements, transitioning from a fixed structure to a mobile unit with open sight lines. This adaptability underscored the dual mission of resilience and inclusion—ensuring 1951 Coffee’s values were embedded in the design as much as in the service itself.

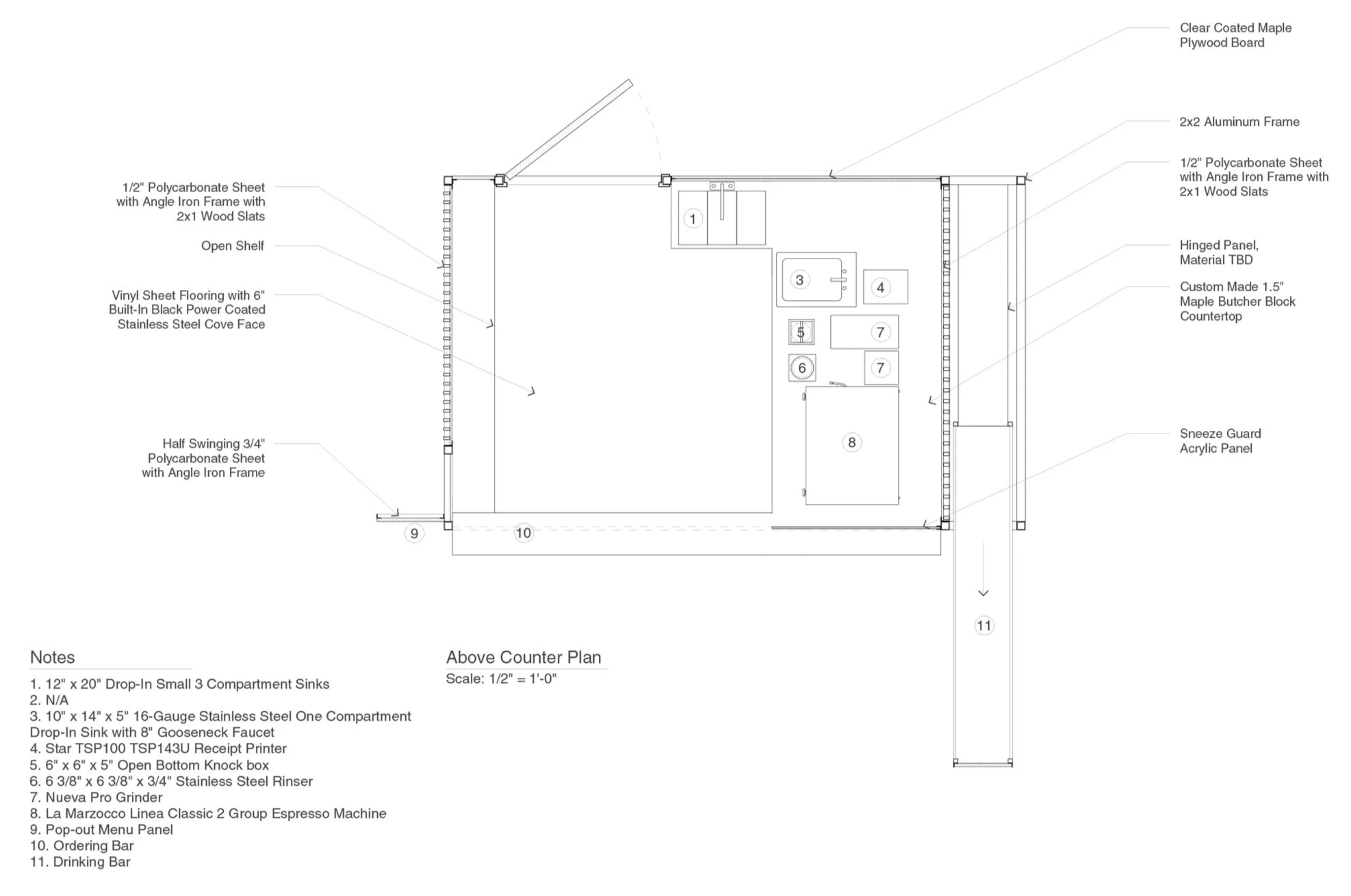
Final plan of the coffee stand in an opened position.

The final iteration shows the stand going from a normal box to an open one giving an element of surprise.

1951 Coffee Stand prior to the installation of final graphics being wheeled in to its storage space.

1951 Coffee Stand prior to the installation of final graphics being wheeled in to its storage space.

1951 Coffee on site and in full operation.

1951 Coffee on site and in full operation.

Follow along on instagram!