An 80m Superyacht Proposal 

Reimagining the superyacht as an architectural landscape of lightness, openness, and play.

Role: Interior Architect and codesigner. In collaboration with Montaag Design and Monk Design.
Client: Private client.


Monk Design, in partnership with Montaag, developed a proposal for an 80-meter superyacht commissioned by a client seeking an alternative to conventional yacht design. Research into the market revealed a striking sameness—designs often reliant on superficial “wowness” rather than true innovation. The proposal challenged this norm, reimagining the yacht as an architectural and experiential landscape at sea.

Drawing inspiration from SANAA’s Glass Pavilion at the Toledo Museum of Art, the design envisioned the yacht’s interior as a series of pavilions separated by open vistas, creating a sense of lightness and continuity with the ocean. Rounded corners softened movement through the vessel, while curtains introduced transparency and flexibility, shaping volumes with delicacy rather than rigidity.

Each cabin was conceived as a pavilion of its own, reinforcing the idea that life aboard should not feel like living in a house placed at sea. Instead, every surface and threshold was designed to maximize views and frame the ocean as the primary context.

The design extended to the beach deck, where architecture blurred into experience. An asymmetrical lap pool—transforming into part of the living space when drained—became both a sculptural and functional element. Similarly, the floor was treated as a dynamic landscape, dipping to form a fire pit, jacuzzi, or pool, each gesture reinforcing the balance of openness, play, and luxury.

The concept fused architecture, art, and nautical design, presenting a superyacht not as an isolated object of spectacle, but as a vessel deeply connected to the rhythms of the sea and the movement of those on board.

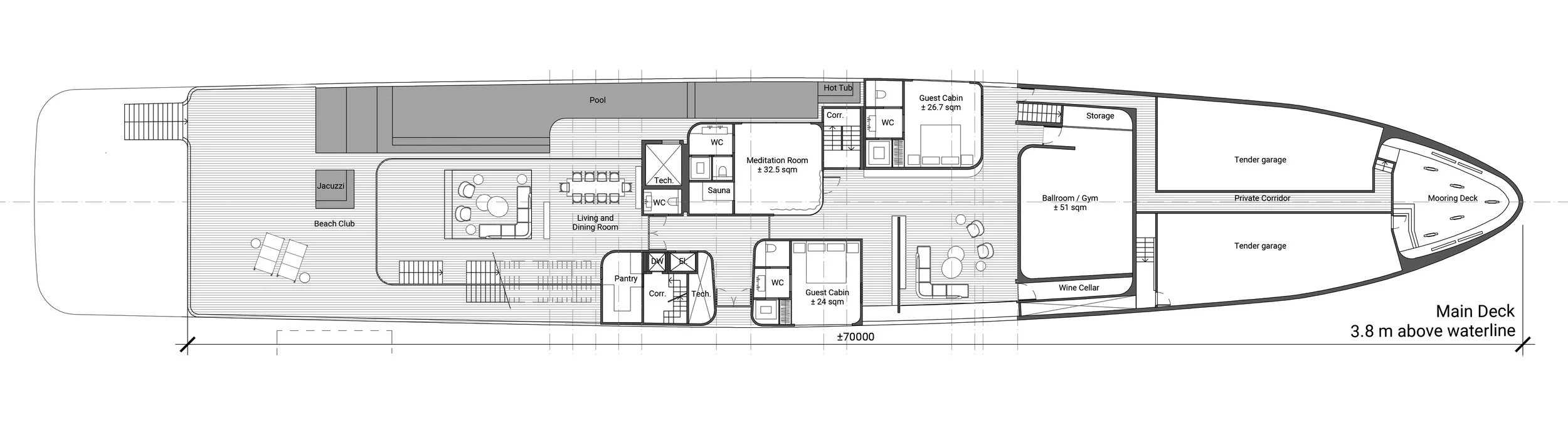
Exemplary deck plan of the proposed yacht

Exemplary deck plan of the proposed yacht.